![]()
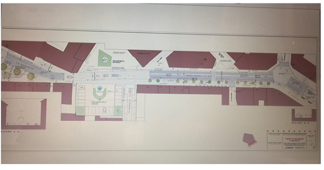
DOMODOSSOLA -26-07-2018- Dopo la pubblica presentazione dei giorni scorsi è stata anche deliberato dalla giunta il progetto per l’abbattimento delle barriere architettoniche e la riqualificazione urbana di corso F.lli Di Dio, Piazza Repubblica dell’Ossola e via Garibaldi. Il progetto definitivo è stato redatto dagli architetti Andrea Forni e Riccardo Gallone a seguito di apposita gara pubblica. L’importo complessivo è di 750 mila euro di cui € 245.192,31 per l’abbattimento delle barriere e la somma di € 354.845,43 per i lavori di viabilità e arredo urbano. A questa si deve aggiungere l’iva e una serie di altre voci che portano i costo alla cifra di 750 mila euro. L’inizio lavori, secondo il cronoprogramma, sarà in autunno per bloccarsi a dicembre e poi riprendere in primavere 2019 e terminare per estate.


